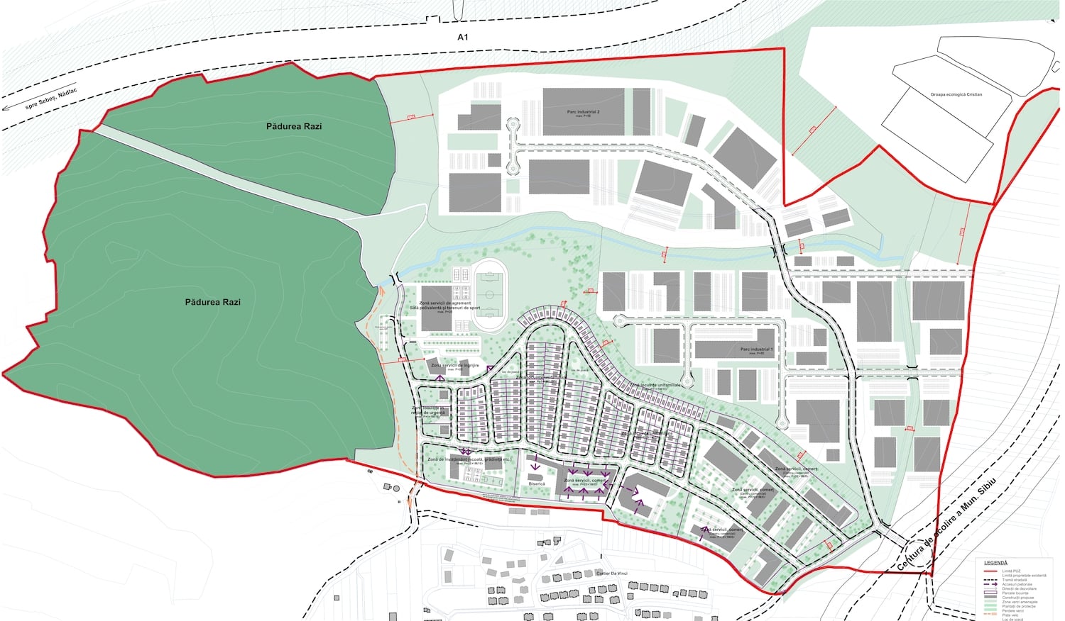
Primăria comunei Cristian a elaborat un proiect pentru reglementarea unei zone de peste 2 milioane de metri pătrați, situată în partea de nord a localității. Planul Urbanistic Zonal (PUZ) aflat în faza de avizare propune transformarea teritoriului cuprins între Autostrada A1 și cartierul privat Da Vinci, zona cuprinzând și Pădurea Răzi. Primăria vrea astfel ca actualul teren, pe care a fost în trecut planificată construcția unei școli de arte și meserii la care s-a renunțat între timp, să schimbe la față nord-estul comunei – zonă aflată în imediata apropiere de municipiul Sibiu: aceasta va cuprinde zonă de locuințe, un complex sportiv, câteva terenuri de sport, școală și grădiniță, biserică, centru comercial, parc industrial.
Un nou „centru de cartier” în comuna Cristian
Proiectul pentru realizarea unui PUZ „Zonă mixtă: rezidențial, agrement, servicii, industrie și depozitare” a fost depus la Direcția Județeană de Mediu în vederea obținerii avizului de mediu. Acesta este prezentat ca unul ce extinde zona rezidențială la nord de DN 1/7 și propune realizarea unui „centru de cartier cu zonă dedicată de învățământ, nucleu comercial și spații publice”.
Autorii documentației amintesc că „o parte din zona reglementată a făcut parte dintr-un plan al autorităților locale de realizare a unei școli de arte și meserii care nu s-a concretizat, iar Pădurea Răzi face obiectul unor proiecte locale de amenajare de trasee velo”. Totodată, se menționează că amplasamentul este momentan ocupat doar de câteva construcții de mici dimensiuni (grajduri, hambare și alte anexe pentru animale) și de o structură de beton nefinalizată, rămasă de la proiectul școlii, rămas abandonat.
Astfel, zona studiată se află la sud de autostradă și la nord de cartierul Da Vinci; la est sunt proprietăți private și zona în care s-a propus executarea viitoarei centura ocolitoare de sud a municipiului Sibiu, iar la vest – terenuri agricole sau neproductive.
Prin tema de proiectare se solicită realizarea unei zone rezidențiale de locuințe unifamiliale, în prelungirea cartierului Da Vinci și ale locuințelor din proximitate: „Introducerea unui centru de cartier, cu funcțiuni educaționale și de servicii de care să beneficieze atât localnicii noii dezvoltări, cât și cei din locuințele existente din proximitate”, scrie în documentația depusă la Mediu.
Conform propunerii de mobilare urbanistică, zona ar urma să cuprindă, pe lângă locuințele unifamiliale, o sală polivalentă cu șase terenuri de sport, grădiniță și școală cu alte trei terenuri de sport, o biserică, mai multe zone de servicii și comerț, inclusiv un centru comercial, un stadion, precum și o zonă cu servicii de îngrijire, locuințe de urgență – iar o parte a zonei reglementată va fi ocupată de parcul industrial la est și pădurea Răzi la vest.

Pădurea Răzi devine pădure-parc pentru turiști și localnici
Potrivit documentației, Pădurea Răzi va fi transformată dintr-un teren forestier neexploatat într-o pădure-parc accesibilă. În memoriul depus la autoritățile de mediu se precizează că pădurea nu va fi un loc pentru viitoare construcții, urmând să rămână în extravilanul localității. „Pădurea Răzi se va păstra și va rămâne în extravilan și se va potența ca spațiu verde forestier public accesibil atât locuitorilor din proximitate, cât și turiștilor în căutare de drumeții, activități în aer și apropierea de natură”, scrie în document.

Extinderea parcului industrial de la marginea Sibiului
În paralel, proiectul propune extinderea zonei industriale existente de la marginea Sibiului. Noul pol de industrie, depozitare și logistică, așa cum este numit în documentație, va fi poziționat în vecinătatea Autostrăzii A1 și a viitoarei centuri de ocolire a municipiului Sibiu. Practic, va face joncțiunea cu actuala zonă industrială de vest a Sibiului în preajma gropii de gunoi.
„Generarea zonei industriale în prelungirea polului existent (la limita comunei Cristian cu municipiul Sibiu) va seta premisele realizării unor noi investiții care să contribuie la economia comunei, constituind o completare funcțională a vecinătăților deja existente”, argumentează realizatorii documentației.
Măsuri de protecție față de groapa de gunoi de la Cristian
Documentația conține și mențiuni cu privire la vecinătatea viitoarei zone propuse pentru locuințe cu groapa ecologică Cristian. Pentru a diminua „impactul vizual și olfactiv”, se propune un sistem de trei fâșii de protecție succesive:
• O primă plantație de protecție de minimum 150 m lățime în jurul gropii ecologice.
• O zonă de perdea verde de minimum 15 m pe fiecare parte a canalului ce traversează terenul.
• A doua plantație de protecție de 30 m care separă zona industrială de cea rezidențială. Astfel, cele mai apropiate locuințe vor fi situate la o distanță de peste 725 de metri față de groapa ecologică.

Costuri
Deocamdată, mobilarea propusă pentru cele peste 200 de hectare de teren sunt la nivel de intenție.
Conform bilanțului teritorial inclus în documentație, marea majoritate a parcelelor vizate aparțin domeniului privat al comunei Cristian, fiind în prezent terenuri agricole sau neproductive. Proiectul prevede posibilitatea ca aceste terenuri să fie concesionate sau vândute în viitor pentru realizarea construcțiilor.
În ceea ce privește aspectele financiare, primăria comunei Cristian va suporta costurile pentru infrastructura rutieră și edilitară de pe domeniul public, arată memoriul. „Detalierea investițiilor propuse (etape, termene și evaluări costuri) se va realiza în Planul de acțiuni – parte integrantă a Planului Urbanistic Zonal”, mai scrie în memoriu la capitolul „categorii de costuri”.
„Considerăm că investiția propusă se încadrează în politicile de dezvoltare ale comunei, prin completarea zonei industriale existente, separarea acesteia prin plantații de protecție de o nouă zonă rezidențială cu toate funcțiunile necesare aferente, servicii și învățământ care pot răspunde și nevoilor localnicilor din cartierul învecinat deja existent, între terenul reglementat și DN 1/7.
În urma implementării investiției care face obiectul prezentului plan urbanistic, considerăm că întregul UTR va avea de câștigat, atât din punct de vedere economic, cât și social, prin creșterea atractivității întregii zone. În plus, în urma implementării investiției vor fi plătite taxe la bugetul local (taxe pe autorizare, taxe pe proprietate) și vor fi create locuri de muncă (atât pe perioada de execuție, cât și în perioada de operare). De asemenea, considerăm că disfuncționalitățile prezentate în documentație își găsesc rezolvarea prin conceptul prezentat”, argumentează elaboratorii documentației.
Documentația a fost elaborată de specialiștii de la Subcontrol SRL din Timișoara și așteaptă acum avizarea specialiștilor de la Direcția de Mediu Sibiu.
Abonează-te la canalul de WhatsApp al Turnul Sfatului pentru a afla în timp real știrile relevante de la Sibiu: accesează linkul de aici și apasă opțiunea Follow (Urmăriți).

Redactor
Alătură-te comunității
Toate comentariile sunt moderate de către redactorii TS, înainte de publicarea pe site, pentru a elimina limbajul agresiv/licențios sau informațiile false. Mulțumim.
Cum sa fie surpriza majora ca nu e Sibiu pe primul loc la locuitori veniti din alte judete?! :)) normal…
Nu ai inteles nimic.Initiatorii proiectului sunt chair cei de la SARA SUN care vor sa construiasca un adevarat complex turistic…
Poate lipsii de la TNB unde este angajata Ofelia Popii, sau acolo nu are incarcare tot timpul.
Acum vedem de ce a fost reales Gardea director.Are cel mai minunat plan de management pentru aeroport.Pe masura ce se…
Acum vaneaza spatiile libere de la parterul blocului plomba, sa faca si acolo o “manevra”, dorind o autorizatie pt ceva,…













Lasă un răspuns