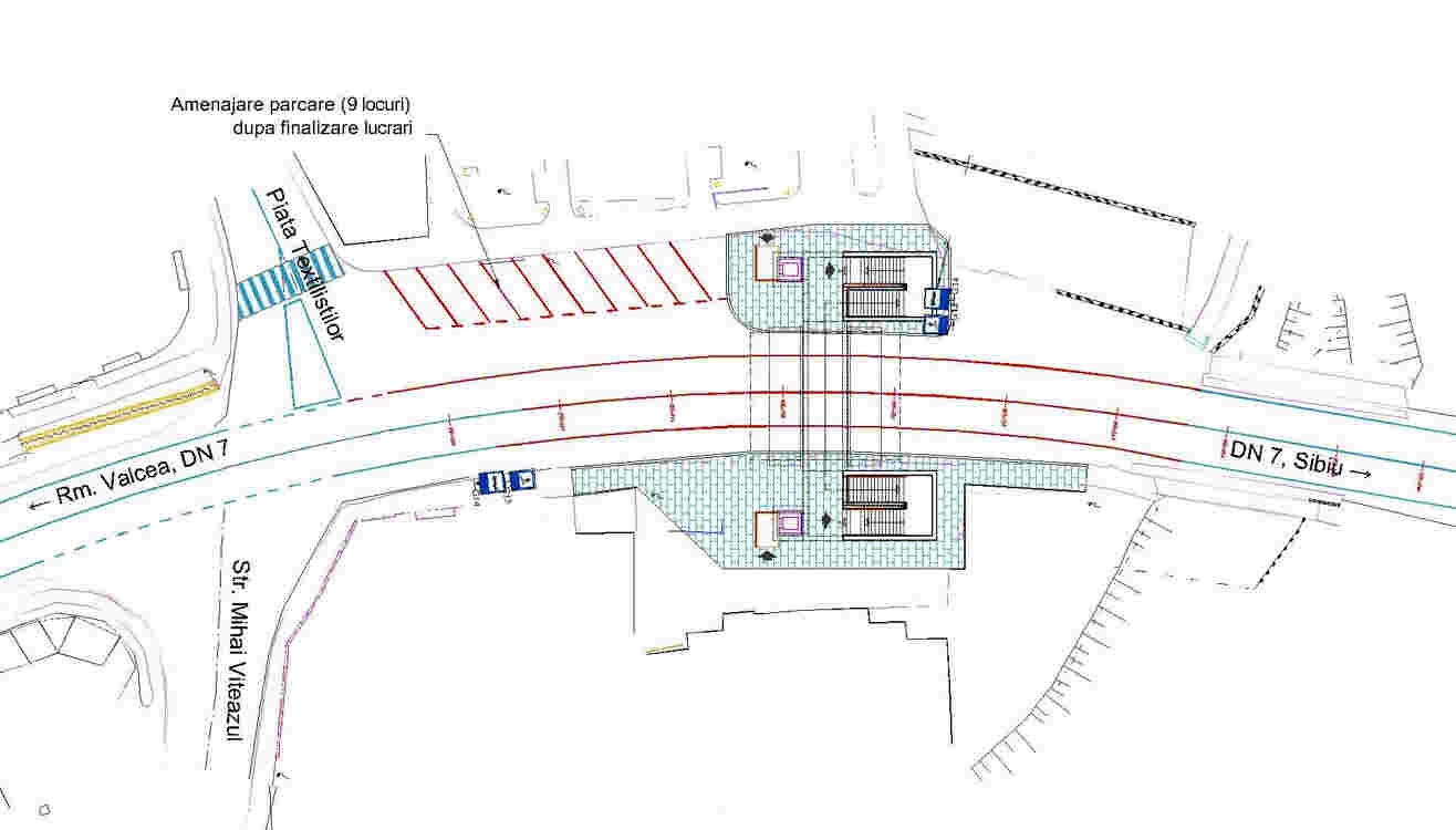
Compania Națională de Administrare a Infrastructurii Rutiere a finalizat proiectul pasajului pietonal subteran din Tălmaciu, cel care ar urma să ajute la fluidizarea traficului pe DN 7 și la creșterea siguranței pietonilor.
Licitația, în valoare estimată de 200.000 de lei, a fost lansată la jumătatea anului trecut și a avut în vedere realizarea studiului de fezabilitate, proiectarea pasajului și întocmirea unui caiet de sarcini pentru viitorul executant.
În prezent, proiectul a fost finalizat și are toate avizele necesare, inclusiv autorizație de construire, anunță reprezentanții Direcției Regionale de Drumuri și Poduri Brașov, care are în subordine județul Sibiu.
Una dintre variantele propuse pentru viitorul pasaj are în vedere achiziția unor lifturi pentru persoanele cu dizabilități:

O altă propunere ia în calcul construcția unor rampe de acces:

În prezent specialiștii CNAIR așteaptă aprobarea bugetului de stat pe anul 2021, iar în funcție de sumele alocate companiei și proiectelor considerate prioritate se va stabili dacă pasajul va fi scos la licitație pentru execuție și care dintre variantele prezentate mai sus va fi agreată.
Reamintim că CNAIR mai are în desfășurare un proiect rutier major în zona orașului Tălmaciu, începând cu toamna anului trecut fiind în desfășurare extinderea DN 7 de la două la trei și patru benzi, pe o distanță de aproximativ trei kilometri. Proiectul are o valoare de aproape 22 de milioane de lei fără TVA și este executat de firma Geiger.
Abonează-te la canalul de WhatsApp al Turnul Sfatului pentru a afla în timp real știrile relevante de la Sibiu: accesează linkul de aici și apasă opțiunea Follow (Urmăriți).
Dacă ți-a plăcut, distribuie articolul și prietenilor tăi


Ultimele comentarii
Acum 12 ore
John
Acum 13 ore
Sibian
Acum 13 ore
Mno
Acum 14 ore
Emil
Acum 14 ore
Ultimii doi neuroni functionali ai Aurorei