Societățile sibiene Terra Building și Bliss s-au asociat în vederea demarării unui proiect imobiliar nou, pe strada Preot Bacca din municipiul Sibiu, lângă Parcul Belvedere. Primăria Sibiu anunță că planurile sunt în consultare publică, sibienii fiind invitați să-și trimită punctele de vedere.
Primăria Sibiu, prin Direcția de Amenajarea Teritoriului și Urbanism, anunță intenția de elaborare a proiectului ,,Zonă de urbanizare UTR UL3 – Locuințe cu regim mediu de înălțime”, pe strada Preot Bacca.
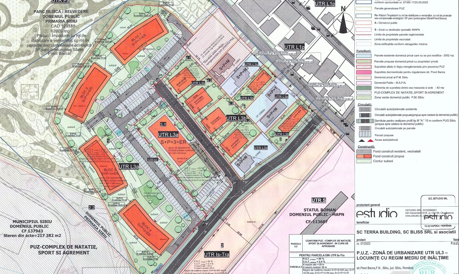
Beneficiari sunt SC Terra Building SRL și SC Bliss SRL, iar terenul reunește mai multe parcele, în total adunând peste 33.500 de metri pătrați.

Zona este lipită de Parcul Belvedere, fiind în imediata apropiere a viitorului complex de natație și agrement, anunțat de municipalitatea sibiană.
Memoriul de prezentare al proiectului arată că în zonă se pot ridica blocuri de cel mult 16 metri înălțime, de tipul S+P+3+R(M)/(S)+P+2+R(M). În total planurile au în vedere peste 300 de apartament, numărul exact urmând să reiasă la finalul consultării publice și după aprobarea planurilor urbanistice.

Planșă propuneri mobilare / Sursa: Primăria Sibiu
”În urma amenajărilor propuse, procentul de ocupare al terenului va fi de maxim 25% pentru S+P+3+R(M), respectiv de maxim 35% (S)+P+2+R(M). Prin urmare terenul în cauză nu va fi folosit în mod intensiv”, informează inițiatorii proiectului.
Planșele cu reglementări urbanistice arată patru blocuri și alte șase imobile în imediata apropiere.
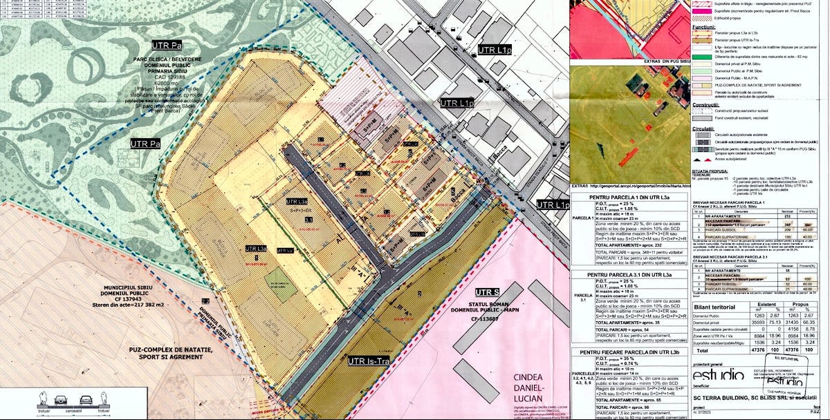
Accesul în viitorul complex imobiliar se va face dintr-o stradă adiacentă străzii Preot Bacca, în prelungirea străzii Islazului. În total, se are în vedere construcția a peste 400 de locuri de parcare, majoritatea subterane.

Plan proiect / Sursa: Primăria Sibiu
”Suplimentar față de dotările existente, pentru creșterea calitătii vieții în zona supusă reglementărilor PUZ, se propune un spațiu de joacă cu acces public – 300 mp, raz~ de deservire – 500 m”, se precizează în memoriul de prezentare.
Cine este interesat poate consulta memoriul de prezentare mai jos:
Revenind la consultarea publică, primăria Sibiu așteaptă eventualele sesizări pe pe adresa str. S. Brukenthal nr. 2, sau prin e-mail, la adresa [email protected], tel. 0269-208800 int. 551. Persoana responsabilă cu informarea și consultarea publicului este consilierul Carmen Budu.
Termenul limită pentru transmiterea punctelor de vedere este 21 mai 2026.

Terenul este lipit de parcul Belvedere / Foto: Turnul Sfatului
Citește și:
Abonează-te la canalul de WhatsApp al Turnul Sfatului pentru a afla în timp real știrile relevante de la Sibiu: accesează linkul de aici și apasă opțiunea Follow (Urmăriți).

Administrație
Alătură-te comunității
Un răspuns
Toate comentariile sunt moderate de către redactorii TS, înainte de publicarea pe site, pentru a elimina limbajul agresiv/licențios sau informațiile false. Mulțumim.
*** si zona asta. bloace sa sa fie (Acest comentariu a fost moderat din cauza limbajului licențios/jignitor)
Tu esti de internat la nebuni :)))
Un jeg de…..nu pot sa-i spui OM!!
inca un imbecil pe sosele!!!
Eu sunt foarte recunoscatoare ca acest festival se organizeaza in orasul meu. Am putut vedea spectacole memorabile. Paradele stradale sunt…













Lasă un răspuns