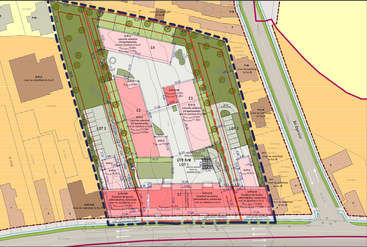
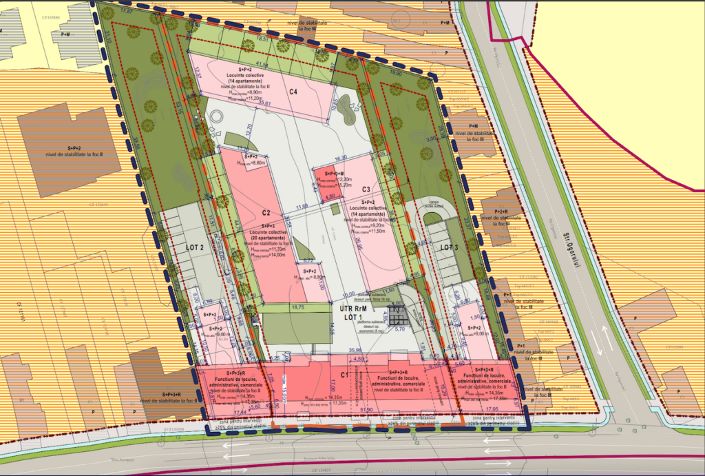
Proiectul imobiliar propus pe șoseaua Alba Iulia nr. 78, inițiat de societatea MAX Development, a ajuns la autoritățile de mediu, în vederea obținerii avizului de mediu. Acesta vizează construirea unui complex de locuințe colective și funcțiuni complementare, în total 66 de apartamente, în preajma străzii Ogorului.
Societatea a inițiat proiectul încă în vara anului trecut, fiind și în consultare publică, elaborat pentru aprobarea unui plan urbanistic zonal (PUZ), care să permită construirea unor locuințe și clădiri cu „funcțiuni complementare”. PUZ-ul vizează o suprafață totală reglementată de peste 9.300 de metri pătrați, din care parcela deținută de Max Development este de aproape 5.600 mp. Terenul este mărginit de șoseaua Alba Iulia, situat la 2,5 km de aeroport.

Conform memoriului tehnic, noile clădiri vor avea un regim de înălțime de maximum trei etaje, plus un nivel retras sau mansardă. Indicatorii urbanistici propuși includ un procent de ocupare a terenului (POT) de maximum 40% și un coeficient de utilizare a terenului (CUT) de 1,6.
În documentul depus la Direcția Județeană de Mediu se menționează că „intervențiile urmăresc satisfacerea cererii de locuire și de expansiune urbană, prin deblocarea unor poziții importante pentru dezvoltările viitoare ale orașului”. Pe lângă locuințe, documentația prevede că viitorul complex va găzdui funcțiuni de servicii, comerț și agrement.
Un element ce poate fi de interes public este lărgirea amprizei stradale a șoselei Alba Iulia prin retragerea aliniamentelor cu câte 3 metri pe fiecare front în zona parcelei studiate. Respectiv, suprafața de teren necesară acestor restructurări va trece cu titlu gratuit în proprietatea publică a municipalității.
În ceea ce privește parcările, reglementările rămân cele prevăzute în regulamentele actuale: se vor asigura 1,5 locuri de parcare pentru fiecare apartament, amplasate atât la sol, cât și în parcări subterane.
Proiectul mai prevede ca un minim de 10% din suprafața desfășurată a locuințelor să fie destinată spațiilor libere de folosință comună – locuri de joacă, zone înierbate -, iar apartamentele de la parter să beneficieze de grădini private „unde suprafața vegetală va acoperi minim 50% din suprafața grădinii”.
Amintim că MAX Development SRL este compania înființată de Max Schweizer, un om de afaceri elvețian, care s-a stabilit la Sibiu. El este pasionat de arhitectură şi este cunoscut pentru transformarea unei vechi şi dărăpănate case din Oraşul de Jos într-o bijuterie arhitecturală și în unul din localurile de elită ale orașului, care îi poartă numele.
Abonează-te la canalul de WhatsApp al Turnul Sfatului pentru a afla în timp real știrile relevante de la Sibiu: accesează linkul de aici și apasă opțiunea Follow (Urmăriți).

Redactor
Alătură-te comunității
5 răspunsuri
-
-
-
Comentariu ascuns din cauza ratingului negativ. Dacă totuși doriți să citiți comentariul, click aici.
-
Toate comentariile sunt moderate de către redactorii TS, înainte de publicarea pe site, pentru a elimina limbajul agresiv/licențios sau informațiile false. Mulțumim.
Nimic nu ma intereseaza mai putin dintre toate lucrurile pe care le poste face primaria.
Suveraniști la „muncă”
Saracia din judet este la cote alarmante ! Tutele de la primarie si consiliu local, nu cunosc realitatea din teren…
1,De ce nu te prezinti la teste,avem locuri libere,inclusiv la Forte Speciale 2,Pensii speciale si 1,000 de avantaje.Vise taica,vise ca…
Nu știu cat de bună este interzicerea lor , într-un oraș care se vrea turistic , măcar pe la hoteluri…













Lasă un răspuns