Primăria Sibiu, prin Direcția de Amenajare a Teritoriului și Urbanism, organizează dezbatere publică pe tema construirii unui bloc pe malul Cibinului, chiar pe strada Malului, la nr. 4. Zona e lipită de parcarea care deservește comercianții din Piața Cibin, lângă benzinărie.
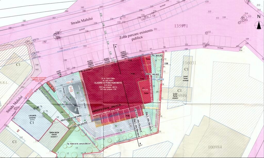
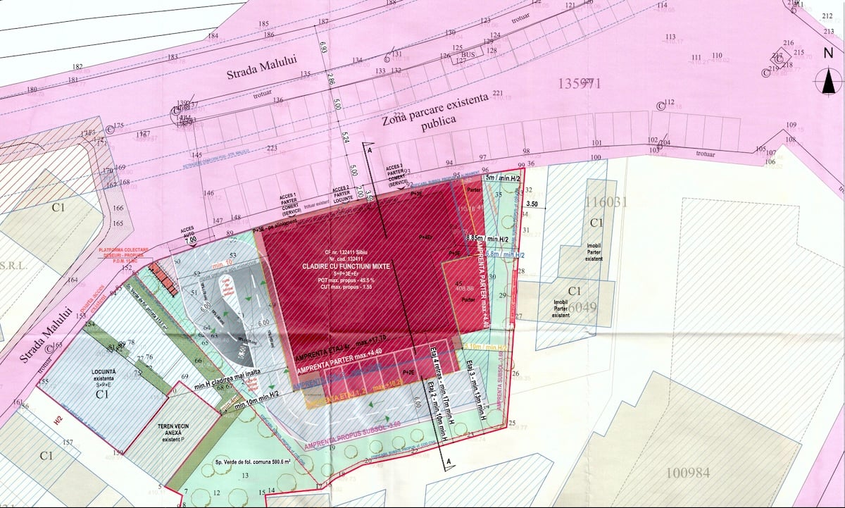
Concret, documentația se referă la elaborarea Planului Urbanistic de Detaliu și are ca beneficiar o persoană fizică. Memoriul justificativ care însoțește anunțul dezbaterii precizează că imobilul va avea subsol, parter, trei etaje plus etaj retras, totalizând spații comerciale și 22 apartamente.
Terenul pe care se va construi blocul are aproape 2.400 metri pătrați.
Pe acest teren există deja o construcție care are o suprafață de 186 metri pătrați. ”Se propune păstrarea imobilului existent și construirea unui corp C2 cu regim de înălțime S+P+3E+Er”, se arată în documentul citat.

Planșa viitorului proiect imobiliar
”Accesul auto și pietonal pe terenul generator PUD se propune din Str. Malului. Va fi amenajată o parcare subterană la subsolul imobilului, cu capacitatea de minim 38 locuri de parcare. Va fi amenajată o parcare supraterană la nivelul solului, cu capacitatea de maxim 7 locuri de parcare”, precizează memoriul justificativ.
Nu în ultimul rând, memoriul mai menționează că pe terenul avut în vedere spațiul verde va ocupa o suprafață de 25%.
Cine este interesat poate citi întreg memoriul justificativ aici:
Revenind la dezbaterea publică, cine dorește poate trimite un punct de vedere fie pe adresa Primăriei Municipiului Sibiu, str. S. Brukenthal nr. 2, fie pe email, la [email protected], sau la tel. 0269-208800 int. 551 – persoana responsabil cu informarea si consultarea publicului este consilierul Carmen Budu.
Termenul limită pentru trimiterea sesizărilor este 1 mai.
În ultimii ani râul Cibin a devenit o atracție pentru dezvoltatorii imobiliari, mai ales după amenajarea pistei de biciclete. Mai mulți investitori și-au exprimat public intenția de a demara în apropiere de râul Cibin construcții, unele proiecte imobiliare fiind de mare amploare, altele ceva mai reduse:
Abonează-te la canalul de WhatsApp al Turnul Sfatului pentru a afla în timp real știrile relevante de la Sibiu: accesează linkul de aici și apasă opțiunea Follow (Urmăriți).

Administrație
Alătură-te comunității
2 răspunsuri
-
De ce mai cereti parerea daca tot NU va intereseaza ?
Se potriveste, nuca in perete ,in zona fiind sute de blocuri cu acelasi regim de inaltime,parcari ,circulatie asigurate,aer…loc cu verdeata etc. NU CREDEAM ca pista de biciclete va atrage atatea blocuri…depinde de PERSOANA FIZICA …mai bine renuntam la pista !!! Speram sa „expire” cei care APROBA (cica ,plutasii din primarie ) ,distrug totul prin „pescuitul ” din …balcon !
S +P+E ?!…pt. persoanele juritice ????…
Toate comentariile sunt moderate de către redactorii TS, înainte de publicarea pe site, pentru a elimina limbajul agresiv/licențios sau informațiile false. Mulțumim.
foarte bine sa fie beton nu verde
hopa, SI-AU FACUT CURAJ SA MASOARE SI ALTUNDEVA DECAT UNDE STIU SIGUR CA PARAMETRII SUNT OK!
De ce mai cereti parerea daca tot NU va intereseaza ? Se potriveste, nuca in perete ,in zona fiind sute…
Cand am zis că sibiul e noul Medellin al țării nu m-ați crezut…uitați-vă ce se întâmplă cu niste copilași de…
Trif acest șoricel ridicat în plan politic pe spatele tatucului, care se vrea șobolan in devenire în cămară statului. Prin…













Lasă un răspuns